収益物件/住宅付店舗 堺市堺区住吉橋町*** 中古収益物件
      本物件は成約済みとなりウェブでの公開を終了しました。
類似条件の土地・新築住宅・中古住宅・中古マンションなどの情報をお求めの方は、お気軽にお問い合わせ下さい。
    
所在地
      堺市堺区住吉橋町***
    
        ****万円
      
      
                                            ***m²
                                      **
                                    
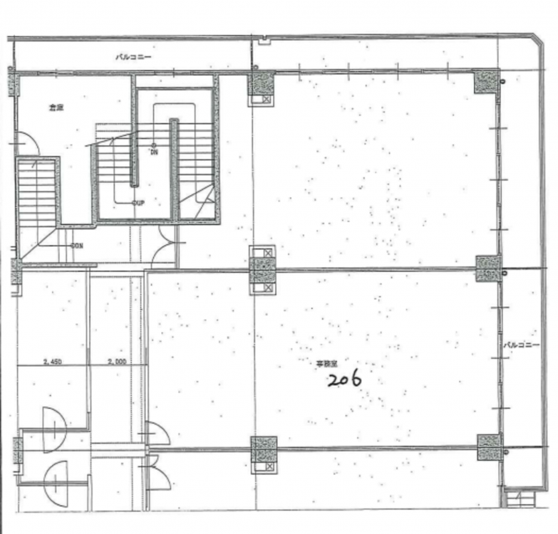
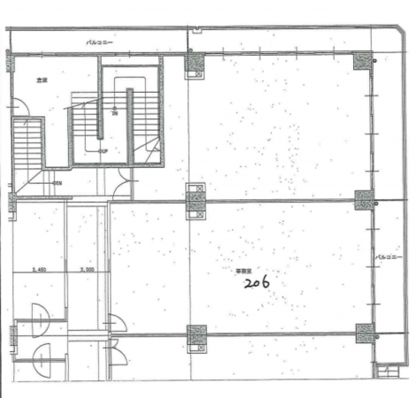
    物件概要
- 交通
- ****
- 専有面積
- ****
- バルコニー面積
- 10.00㎡
- バルコニー方向
- 東
- 所在階/階数
- ****
- 築年数
- ****
- 建ぺい率
- ****
- 容積率
- ****
- 土地権利
- 所有権
- 構造および階数
- SRC(鉄骨鉄筋コンクリート) 造 地上11階建
- 総戸数
- 80戸
- 小学校区
- 市 ( ****m )
- 中学校区
- 月洲 ( ****m )
- 私道負担
- 地目
- 現況
- 空
- 引渡時期
- ****
- 駐車場
- 上水道
- 下水道
- ガス
- 都市計画
- 管理形態
- 全部委託
- 管理方式
- 管理人日勤
- 用途地域
- 商業
- 設備・条件
- ****
- 備考
- ****
- 取引態様
- 仲介
 
                  
