収益物件/ビル 堺市堺区南瓦町
所在地
堺市堺区南瓦町
4,500万円
【オーナーチェンジ物件】
土地面積:104.99 ㎡(31.76坪)
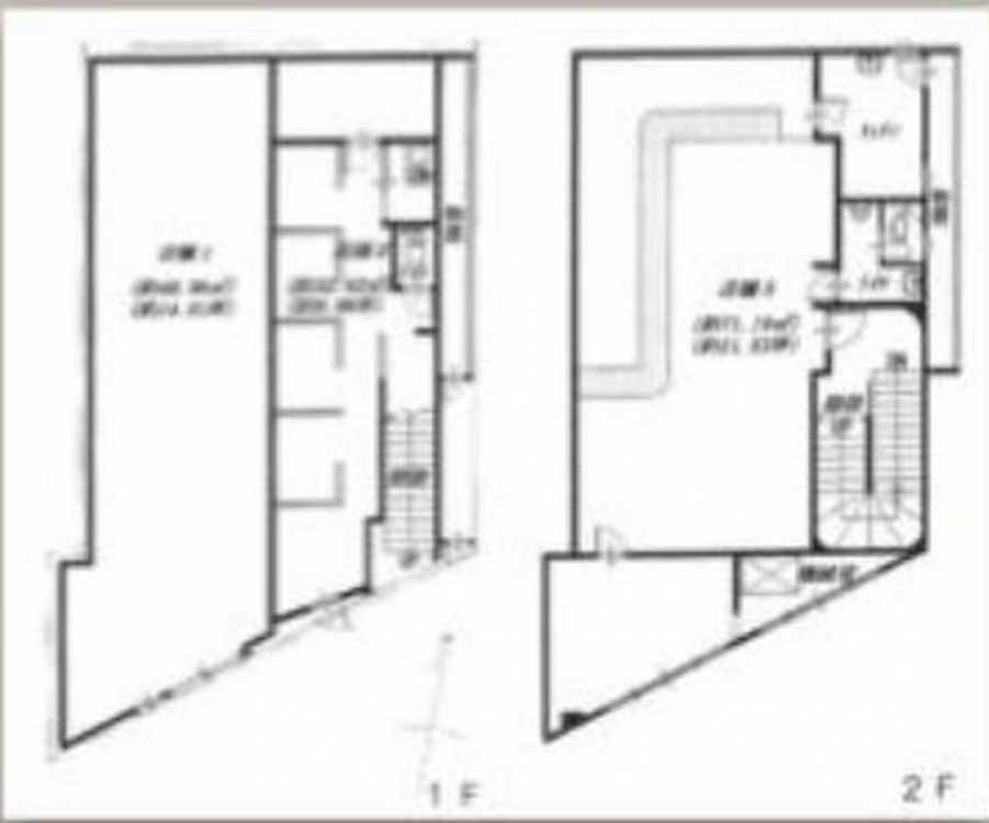
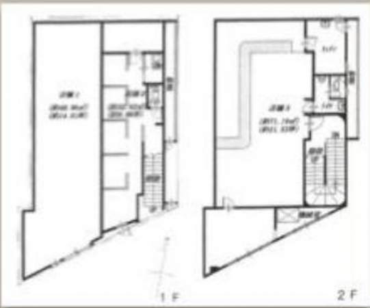
延床面積:255.15 m (77.18)
現況 :店舗5室の内1室賃貸中
年間想定賃料:6,789,600円
想定表面利回:15.09%
南海高野線「堺東」駅 徒歩約7分
阪堺線「大小路」駅 徒歩約11分
物件概要
- 交通
-
南海高野線 堺東駅 まで 徒歩7分
- 表面利回り
- 15.1%
- 土地面積
- 104.99㎡ (31.75坪)
- 建物面積
- 255.15㎡ (77.18坪)
- 所在階/階数
- 築年数
-
1973年
(昭和48)
3月
築53年 - 建ぺい率
- 容積率
- 土地権利
- 所有権
- 構造および階数
- 鉄骨造 地上3階建
- 総戸数
- 小学校区
- 熊野 ( 250m )
- 中学校区
- 殿馬場 ( 700m )
- 私道負担
- 地目
- 現況
- 賃貸中
- 引渡時期
- 相談
- 駐車場
- 上水道
- 下水道
- ガス
- 都市計画
- 管理形態
- 管理方式
- 用途地域
- 設備・条件
- 備考
- 取引態様
- 仲介

