マンション エクセランス堺東
所在地
堺市堺区錦綾町1丁
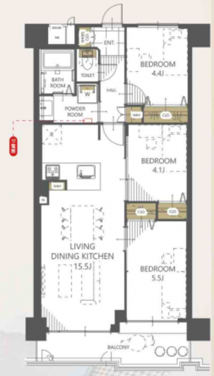
2,490万円
61.49m²
3LDK
新規リノベーション《令和8年1月中旬完了予定>
8階部分につき眺望良好
■天井アクセントクロス+間接照明
■フラット対面キッチン(天板カット) +ペンダントライト
南海高野線『浅香山駅』より徒歩11分
物件概要
- 交通
-
南海高野線 浅香山駅 まで 徒歩11分
- 専有面積
- 壁芯 61.49㎡
- バルコニー面積
- 8.14㎡
- バルコニー方向
- 南
- 所在階/階数
- 8階/9階
- 築年数
-
1988年
(昭和63)
11月
築37年 - 建ぺい率
- 容積率
- 土地権利
- 所有権
- 構造および階数
- RC(鉄筋コンクリート) 造 地上9階建
- 総戸数
- 80戸
- 小学校区
- 錦綾 ( 240m )
- 中学校区
- 浅香山 ( 920m )
- 地目
- 現況
- 空
- 引渡時期
- 即時
- 駐車場
- 駐車場月額
- 管理形態
- 全部委託
- 管理方式
- 管理人日勤
- 管理会社
- 日本管財住宅管理㈱
- 管理費
- 6,030円
- 修繕積立費
- 9,840円
- 上水道
- 下水道
- ガス
- 都市計画
- 用途地域
- 準工業
- 設備・条件
- 備考
-
エレベーター/有
ペット飼育/不可 - 取引態様
- 仲介

