マンション ステュディオ堺フェニックス
所在地
堺市堺区竜神橋町2丁
460万円
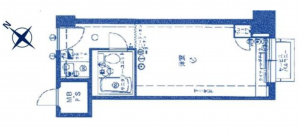
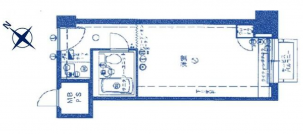
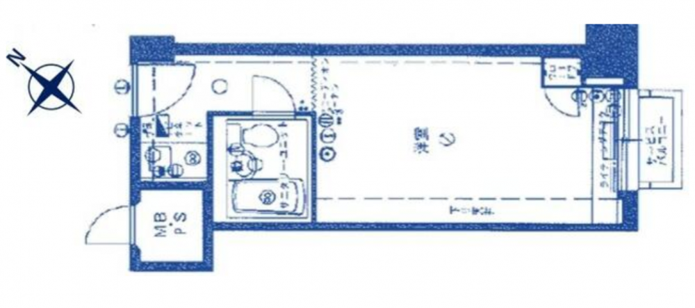
18.27m²
1R
ワンルーム 9階
オーナーチェンジ物件
表面利回8.5%
南海電鉄本線 堺 徒歩3分
物件概要
- 交通
-
南海本線 堺駅 まで 徒歩3分
- 専有面積
- 壁芯 18.27㎡
- バルコニー面積
- 0.93㎡
- バルコニー方向
- 南東
- 所在階/階数
- 9階/10階
- 築年数
-
1986年
(昭和61)
3月
築39年 - 建ぺい率
- 容積率
- 土地権利
- 所有権
- 構造および階数
- RC(鉄筋コンクリート) 造 地上10階建
- 総戸数
- 273戸
- 小学校区
- 市 ( 650m )
- 中学校区
- 月洲 ( 1200m )
- 地目
- 現況
- 賃貸中
- 引渡時期
- 即時
- 駐車場
- 空無
- 駐車場月額
- 35,000円/月
- 管理形態
- 全部委託
- 管理方式
- 管理人日勤
- 管理会社
- 三菱地所コミュニティ
- 管理費
- 6,400円
- 修繕積立費
- 1,990円
- 上水道
- 下水道
- ガス
- 都市計画
- 用途地域
- 準工業
- 設備・条件
- 備考
- 取引態様
- 仲介

