マンション シャルム堺【フルリノベ済】【正規手数料】
所在地
堺市堺区大浜北町2丁
2,280万円
72.32m²
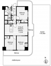
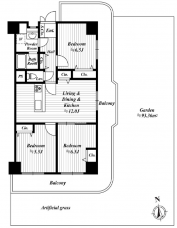
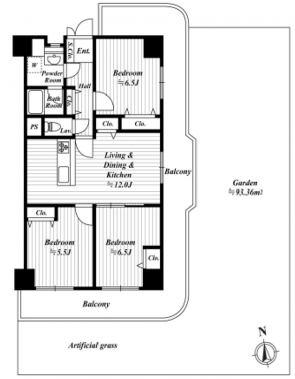
3LDK
○フルリノベーション済【建具も全て交換】♪家具・照明付♪
○専用庭付(広さ93.36㎡)♪ペット飼育可(規約による制限有)♪
○2WAYアクセス♪専有面積70㎡超♪3LDK♪引き回しバルコニー♪
○全室ルームエアコン可♪全居室収納付♪
【リノベーション内容】
○ユニットバス新調(ハウステック)1416サイズ 浴室乾燥暖房機付
○システムキッチン新調(ハウステック)W=2100 食洗機付
○20号オート給湯器新調 追炊き機能付
○洗面化粧台新調W=900(Panasonic)
○温水洗浄便座一体型トイレ新調(TOTO)
○全室クロス張替え
○全居室・リビングL45等級フローリング張(朝日ウッドテック)
○全室内ドア・収納建具新調(ウッドワン)
○専用庭人工芝敷設 ○ハウスクリーニングetc...
南海電気鉄道本線 / 堺駅 徒歩7分
阪堺電気軌道阪堺線 / 宿院 駅 徒歩13分
○プラットプラット 徒歩 約10分 約750m
○ローソン 堺大浜店 徒歩 約4分 約270m
物件概要
- 交通
-
南海本線 堺駅 まで 徒歩7分
- 専有面積
- 壁芯 72.32㎡
- バルコニー面積
- 27.95㎡
- バルコニー方向
- 南西
- 所在階/階数
- 1階/14階
- 築年数
-
1979年
(昭和54)
2月
築46年 - 建ぺい率
- 容積率
- 土地権利
- 所有権
- 構造および階数
- SRC(鉄骨鉄筋コンクリート) 造 地上14階建
- 総戸数
- 460戸
- 小学校区
- 英彰 ( 750m )
- 中学校区
- 大浜 ( 800m )
- 地目
- 現況
- 空
- 引渡時期
- 即時
- 駐車場
- 空無
- 駐車場月額
- 10,000円/月
- 管理形態
- 自主管理
- 管理方式
- 管理人日勤
- 管理会社
- 管理費
- 6,860円
- 修繕積立費
- 11,940円
- 上水道
- 下水道
- ガス
- 都市計画
- 用途地域
- 近隣商業
- 設備・条件
- 備考
-
フルリノベ済☆正規手数料
『アースのリノベ』☆家具・照明付き☆専用庭93㎡♪♪ - 取引態様
- 仲介

