マンション 朝日プラザ堺東Ⅱ
所在地
堺市堺区翁橋町1丁
1,450万円
69.30m²
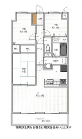
3LDK
間取り:3LDK
専有面積:69.30㎡
バルコニー(テラス)面積:7.97㎡
南海高野線『堺東駅』徒歩8分
阪堺電気軌道阪堺線『宿院駅』より徒歩11分
阪堺電気軌道阪堺線『大小路駅』より徒歩13分
物件概要
- 交通
-
南海高野線 堺東駅 まで 徒歩8分
- 専有面積
- 壁芯 69.30㎡
- バルコニー面積
- 7.97㎡
- バルコニー方向
- 南
- 所在階/階数
- 3階/11階
- 築年数
-
1995年
(平成7)
2月
築31年 - 建ぺい率
- 容積率
- 土地権利
- 所有権
- 構造および階数
- RC(鉄筋コンクリート) 造 地上11階建
- 総戸数
- 108戸
- 小学校区
- 安井 ( 313m )
- 中学校区
- 陵西 ( 1728m )
- 地目
- 現況
- 居住中
- 引渡時期
- 相談
- 駐車場
- 空無
- 駐車場月額
- 10,000円/月
- 管理形態
- 全部委託
- 管理方式
- 管理人日勤
- 管理会社
- 日本ビルサービス
- 管理費
- 6,980円
- 修繕積立費
- 5,500円
- 上水道
- 下水道
- ガス
- 都市計画
- 用途地域
- 商業
- 設備・条件
- 備考
- 取引態様
- 仲介

