新築一戸建て 堺市堺区四条通
所在地
堺市堺区四条通
3,795万円
29.80坪
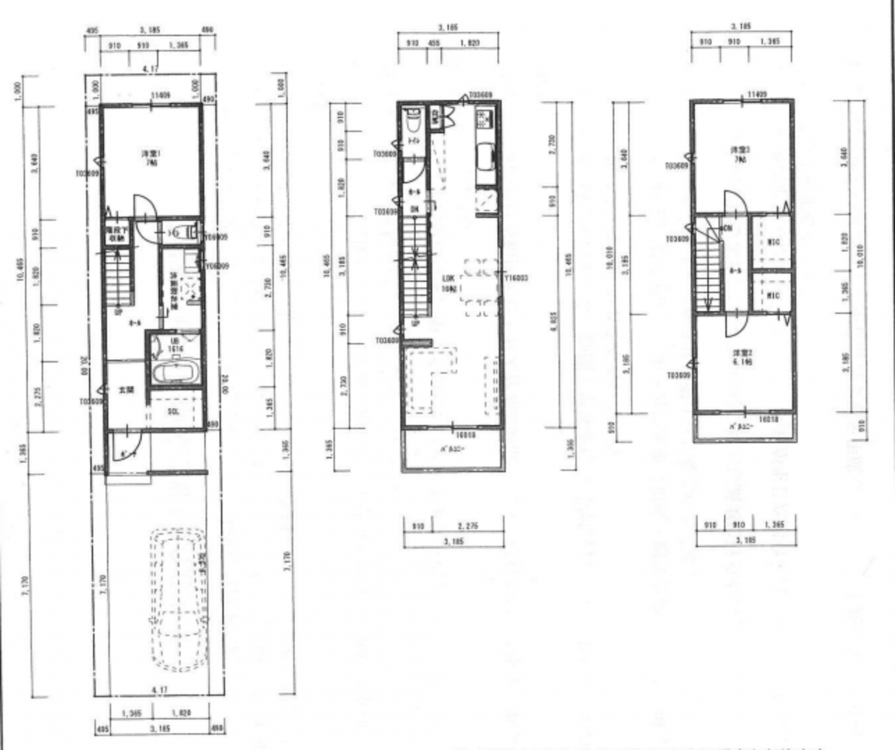
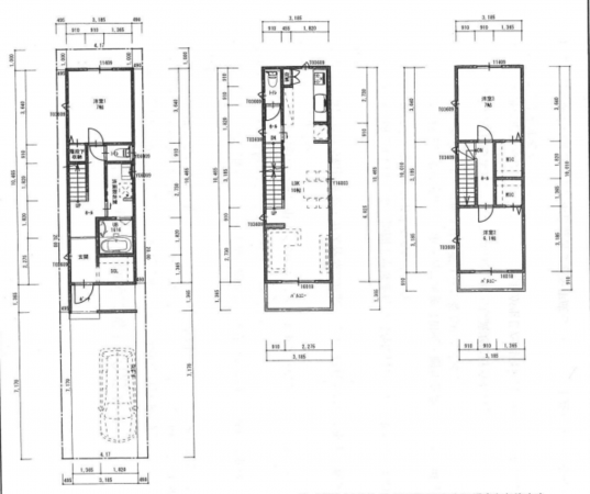
3LDK
土地面積(私道を含まず):83.48㎡
建物面積:98.54㎡
間取り:3LDK
令和8年8月築予定
南海高野線 堺東駅 徒歩 13 分
物件概要
- 交通
-
南海高野線 堺東駅 まで 徒歩13分
- 接道状況
- 北西側 公道5.4m 間口約4.2m
- 土地面積
- 公簿 83.48㎡ (25.25坪)
- 建物面積
- 98.54㎡ (29.80坪)
- 築年数
- 2026年 (令和8) 8月
- 建ぺい率
- 60%
- 容積率
- 200%
- 土地権利
- 所有権
- 構造および階数
- 木造 地上3階建
- 小学校区
- 大仙 ( 800m )
- 中学校区
- 旭 ( 600m )
- 私道負担
- 地目
- 宅地
- 現況
- 引渡時期
- 相談
- 駐車場
- 有
- 上水道
- 下水道
- ガス
- 都市計画
- 市街化区域
- 用途地域
- 2種中高
- 設備・条件
- 備考
- 取引態様
- 仲介

