新築一戸建て 堺市堺区旭ヶ丘北町1丁
所在地
堺市堺区旭ヶ丘北町1丁
3,580万円
23.04坪
2LDK
現状:古家付き土地
建築条件付き新築戸建て(条件外し+300万)
土地面積(私道を含まず):59.50㎡
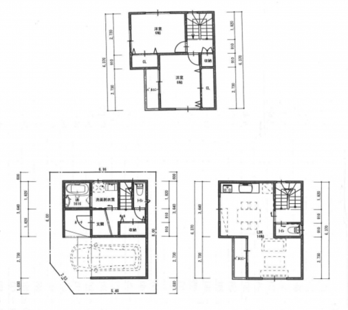
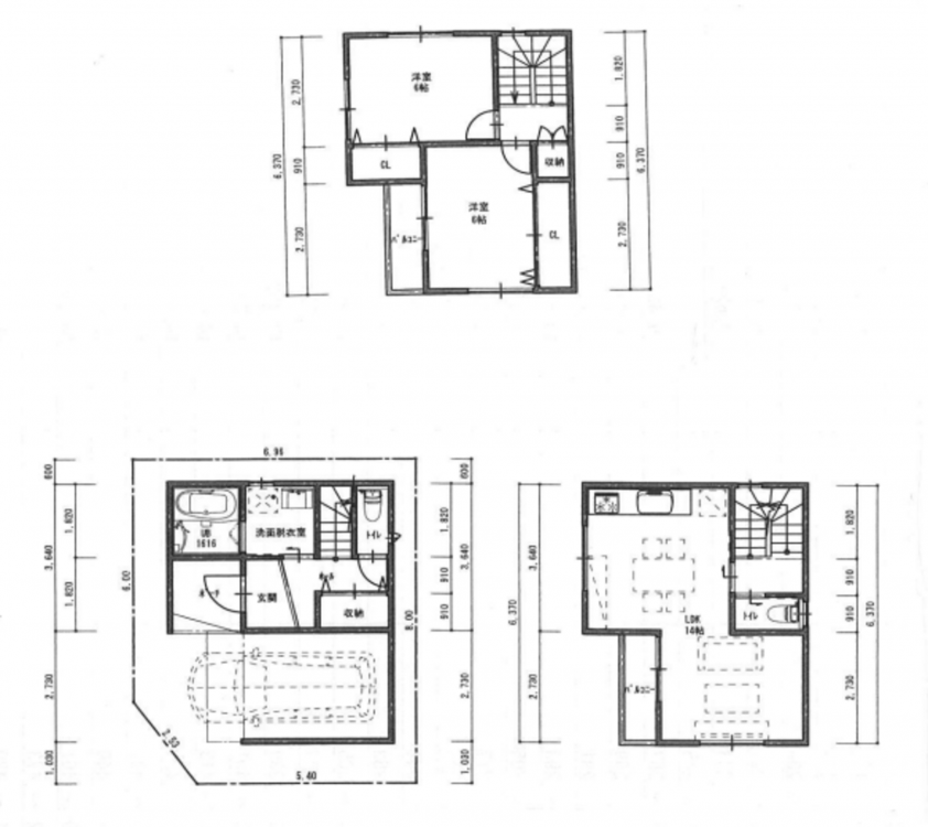
建物面積:76.18㎡
3階建て/間取り:2LDK
LDK:14帖
JR阪和線 『百舌鳥駅』 徒歩19分
物件概要
- 交通
-
JR阪和線 まで 徒歩19分
- 接道状況
-
南東側 公道5.5m 間口約8m
北東側 私道4.7m 間口約7.6m - 土地面積
- 公簿 59.50㎡ (17.99坪)
- 建物面積
- 76.18㎡ (23.04坪)
- 築年数
- 2026年 (令和8) 10月
- 建ぺい率
- 60%
- 容積率
- 200%
- 土地権利
- 所有権
- 構造および階数
- 木造 地上3階建
- 小学校区
- 大仙 ( 550m )
- 中学校区
- 旭 ( 290m )
- 私道負担
- 地目
- 宅地
- 現況
- 空
- 引渡時期
- 相談
- 駐車場
- 有
- 上水道
- 下水道
- ガス
- 都市計画
- 市街化区域
- 用途地域
- 1種住居
- 設備・条件
- 備考
- 取引態様
- 仲介

