中古一戸建て 堺市堺区三条通
所在地
堺市堺区三条通
3,500万円
62.72坪
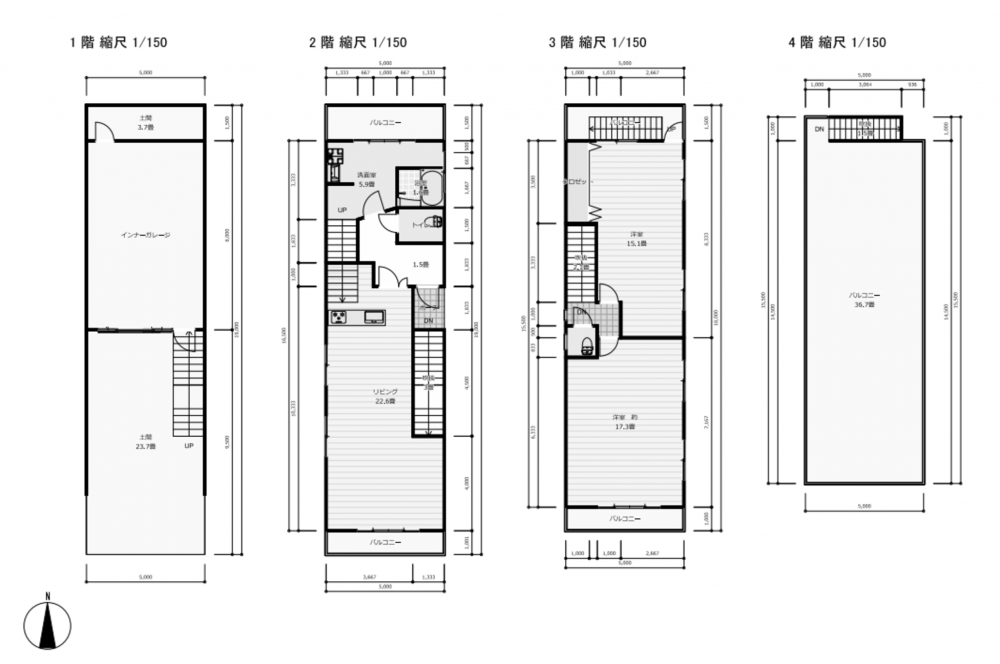
2LDK
土地面積(私道を含まず)108.00㎡
建物面積 207.36㎡
3階建て・鉄骨造・2LDK
【設備】システムキッチン・IHクッキングヒーター・ルーフバルコニー・オール電化・駐車場3台分・ビルトインガレージ
南海高野線『堺東駅』より徒歩12分
物件概要
- 交通
-
南海高野線 堺東駅 まで 徒歩12分
- 接道状況
- 土地面積
- 108.00㎡ (32.67坪)
- 建物面積
- 207.36㎡ (62.72坪)
- 築年数
-
1994年
(平成6)
1月
築32年 - 建ぺい率
- 60%
- 容積率
- 200%
- 土地権利
- 所有権
- 構造および階数
- 鉄骨造 地上3階建
- 小学校区
- 大仙 ( 900m )
- 中学校区
- 陵西 ( 1300m )
- 私道負担
- 地目
- 宅地
- 現況
- 空
- 引渡時期
- 相談
- 駐車場
- 上水道
- 下水道
- ガス
- 都市計画
- 市街化区域
- 用途地域
- 2種中高
- 設備・条件
- 備考
- 取引態様
- 仲介

