中古一戸建て 堺市堺区賑町4丁
所在地
堺市堺区賑町4丁
1,650万円
27.63坪
3SLDK
【オーナーチェンジ物件】
●堺東駅 徒歩約12分!
●土地約17坪!
●利回り5.67%!
南海高野線 『堺東駅』 徒歩 12 分
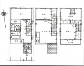
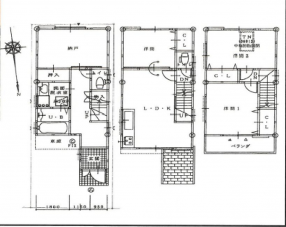
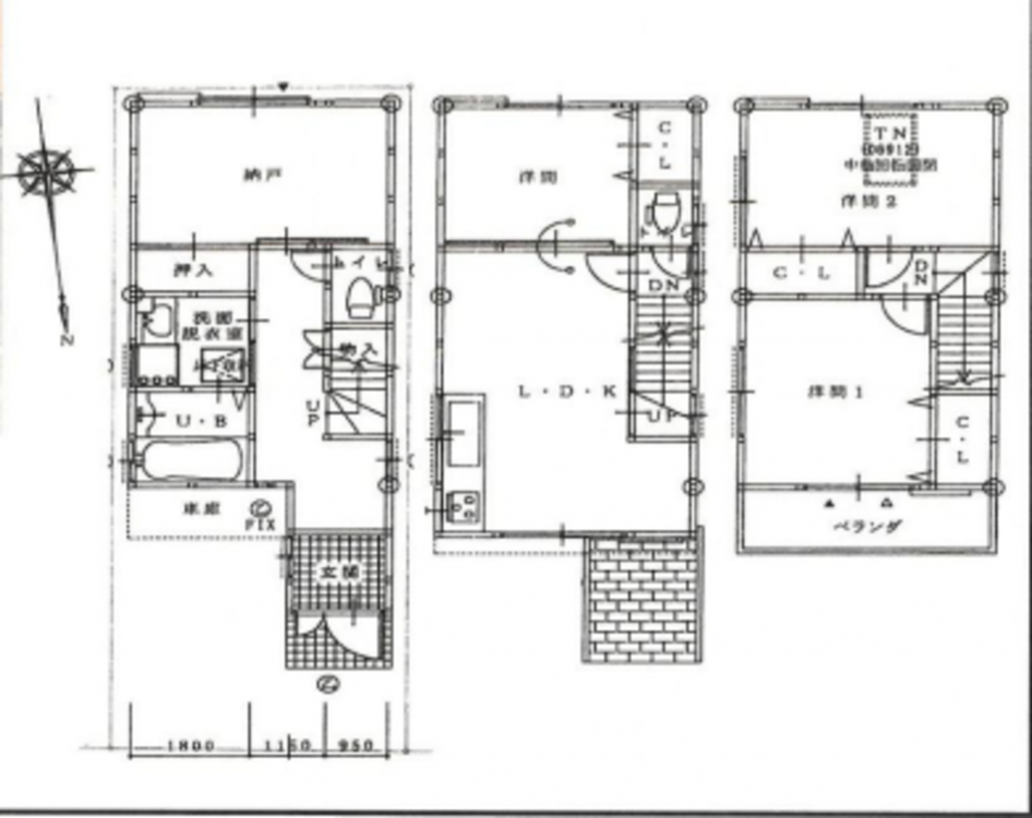
物件概要
- 交通
-
南海高野線 堺東駅 まで 徒歩12分
- 接道状況
- 北側 公道7m 間口約4.5m
- 土地面積
- 公簿 55.75㎡ (16.86坪)
- 建物面積
- 91.35㎡ (27.63坪)
- 築年数
-
2007年
(平成19)
3月
築18年 - 建ぺい率
- 80%
- 容積率
- 300%
- 土地権利
- 所有権
- 構造および階数
- 木造 地上3階建
- 小学校区
- 安井 ( 160m )
- 中学校区
- 陵西 ( 1100m )
- 私道負担
- 無
- 地目
- 宅地
- 現況
- 居住中
- 引渡時期
- 相談
- 駐車場
- 有
- 上水道
- 下水道
- ガス
- 都市計画
- 市街化区域
- 用途地域
- 近隣商業
- 設備・条件
- 備考
- 取引態様
- 仲介

