中古一戸建て 堺市堺区緑ヶ丘南町2丁
所在地
堺市堺区緑ヶ丘南町2丁
8,480万円
38.44坪
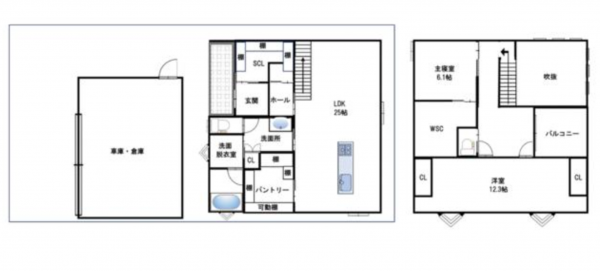
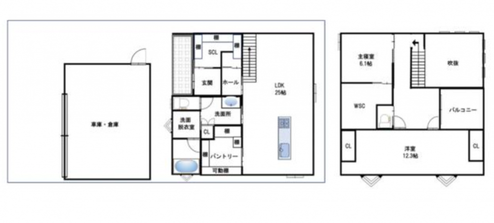
2SLDK
●築浅物件(令和3年4月新築)
●太陽光発電11.5kW設置光熱費負担少
●広々とした車庫付き! 倉庫としてもご利用いただけます!
●とてもオシャレな素敵な内装・設備です
JR阪和線 『上野芝駅』徒歩 12 分
物件概要
- 交通
-
JR阪和線 まで 徒歩13分
- 接道状況
- 北東側5.4m 間口約10.8m
- 土地面積
- 公簿 243.87㎡ (73.77坪)
- 建物面積
- 127.10㎡ (38.44坪)
- 築年数
-
2021年
(令和3)
4月
築5年 - 建ぺい率
- 52%
- 容積率
- 120%
- 土地権利
- 所有権
- 構造および階数
- 木造 地上2階建
- 小学校区
- 大仙 ( 1100m )
- 中学校区
- 旭 ( 1000m )
- 私道負担
- 無
- 地目
- 宅地
- 現況
- 居住中
- 引渡時期
- 相談
- 駐車場
- 有
- 上水道
- 下水道
- ガス
- 都市計画
- 市街化区域
- 用途地域
- 1種低層
- 設備・条件
- 備考
- 取引態様
- 仲介

