新築一戸建て 堺市堺区石津町2丁
所在地
堺市堺区石津町2丁
3,150万円
27.44坪
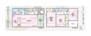
3LDK
土地面積(私道を含まず)102.67㎡
建物面積 90.72㎡
築年月 2025年(令和 7年)10月
【設備】
都市ガス,電気,上水道,下水道,システムキッチン,カウンターキッチン,浄水器,給湯,トイレ2箇所,温水洗浄便座,シャンプードレッサー,浴室乾燥機,ルーフバルコニー,24時間換気システム,収納スペース,床下収納,モニター付きインターホン,火災警報器等設置済
阪堺電気軌道阪堺線『石津北駅』より徒歩16分
阪和線『上野芝駅』より徒歩22分
物件概要
- 交通
-
阪堺電気軌道阪堺線 石津北駅 まで 徒歩16分
- 接道状況
- 東側 私道3.2m 間口約5.8m
- 土地面積
- 実測 102.67㎡ (31.05坪)
- 建物面積
- 90.72㎡ (27.44坪)
- 築年数
- 2025年 (令和7) 10月
- 建ぺい率
- 60%
- 容積率
- 174%
- 土地権利
- 所有権
- 構造および階数
- 木造 地上2階建
- 小学校区
- 神石 ( 130m )
- 中学校区
- 旭 ( 1600m )
- 私道負担
- 有 109 ㎡
- 地目
- 宅地
- 現況
- 空
- 引渡時期
- 即時
- 駐車場
- 有
- 上水道
- 下水道
- ガス
- 都市計画
- 市街化区域
- 用途地域
- 1種住居
- 設備・条件
- 備考
- 取引態様
- 仲介

