中古一戸建て 堺市堺区錦綾町1丁
所在地
堺市堺区錦綾町1丁
2,300万円
36.62坪
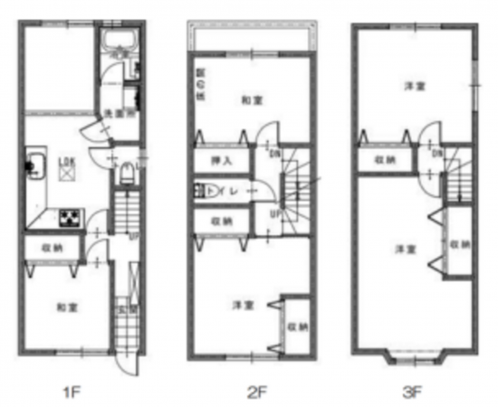
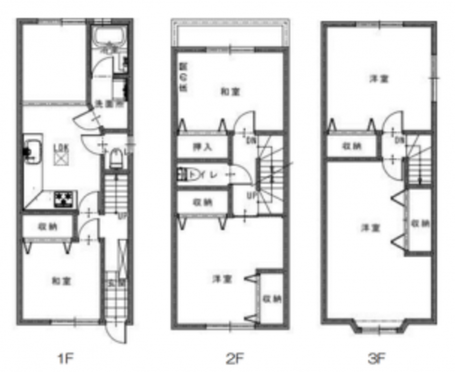
5LDK
オーナーチェンジ物件
★予定利回り7%
★年間予定賃料収入:160.8万円
阪堺電気軌道阪堺線『綾ノ町駅』より徒歩6分
南海高野線『堺東駅』より徒歩13分
物件概要
- 交通
-
阪堺電気軌道阪堺線 綾ノ町駅 まで 徒歩6分
- 接道状況
- 土地面積
- 52.66㎡ (15.92坪)
- 建物面積
- 121.08㎡ (36.62坪)
- 築年数
-
1994年
(平成6)
11月
築31年 - 建ぺい率
- 60%
- 容積率
- 200%
- 土地権利
- 所有権
- 構造および階数
- 木造 地上3階建
- 小学校区
- 錦綾 ( 350m )
- 中学校区
- 浅香山 ( 1000m )
- 私道負担
- 地目
- 宅地
- 現況
- 居住中
- 引渡時期
- 相談
- 駐車場
- 上水道
- 下水道
- ガス
- 都市計画
- 市街化区域
- 用途地域
- 準工業
- 設備・条件
- 備考
- 取引態様
- 仲介

