新築一戸建て 堺市堺区神保通C号地
所在地
堺市堺区神保通C号地
3,850万円
32.34坪
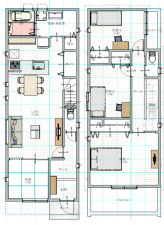
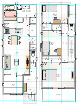
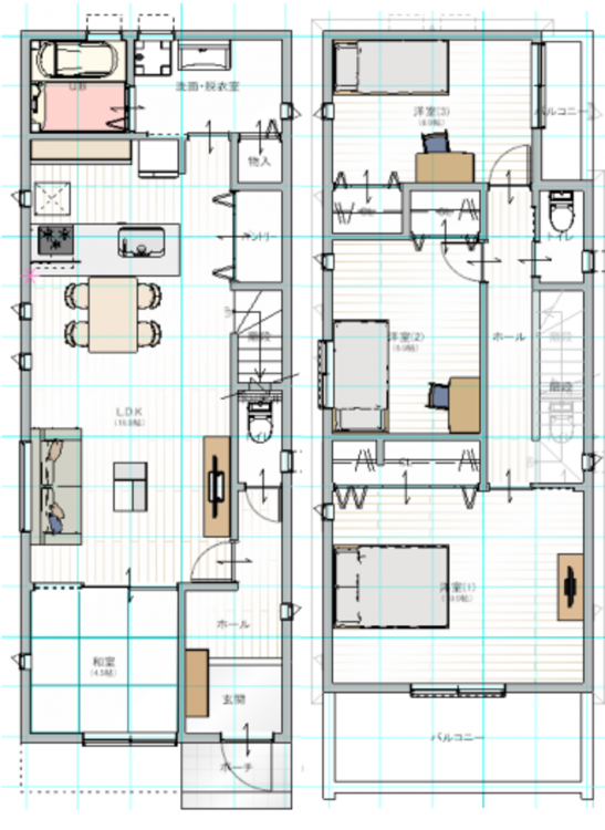
4LDK
土地面積(私道を含まず)107.72㎡
建物面積106.92㎡
LDK 18帖
和室 4.5帖
洋室 6帖×2
洋室 10帖
駐車場 2台
南海高野線 堺東 駅 徒歩 20 分
物件概要
- 交通
-
南海高野線 堺東駅 まで 徒歩20分
- 接道状況
- 南東側 公道5.5m 間口約5.5m
- 土地面積
- 107.72㎡ (32.58坪)
- 建物面積
- 106.92㎡ (32.34坪)
- 築年数
-
2023年
(令和5)
7月
築2年 - 建ぺい率
- 60%
- 容積率
- 200%
- 土地権利
- 所有権
- 構造および階数
- 木造 地上2階建
- 小学校区
- 少林寺 ( 900m )
- 中学校区
- 陵西 ( 750m )
- 私道負担
- 地目
- 宅地
- 現況
- 空
- 引渡時期
- 即時
- 駐車場
- 有
- 上水道
- 下水道
- ガス
- 都市計画
- 市街化区域
- 用途地域
- 2種中高
- 設備・条件
- 備考
- 取引態様
- 仲介

